Price Range: from to

Rooftop duplex for sale in Saifi buy

$11,228,000

$11,008 / m2

Details

Updated on 10 years ago

  • Property ID : 14671
  • Price : $11,228,000
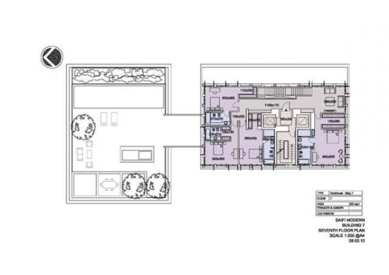
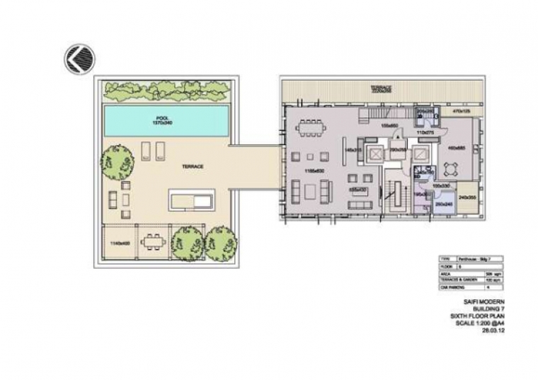
  • Property Size : 1020 m2
  • Floor : 6
  • Parking lots : 4

Description

Each floor inside 295 sqm 

Terrace with swimming pool 430 sqm 

Located in the 6th and 7th floor 

Delivered in May 2017 

Address

  • Address : Saifi
  • State/Country : Saifi
  • Country : Beirut

Inquire about this property