Price Range: from to

Showroom For Sale In Rmeil buy

$2,768,000

$8,000 / m2

Details

Updated on 11 years ago

  • Property ID : 13837
  • Price : $2,768,000
  • Property Size : 346 m2

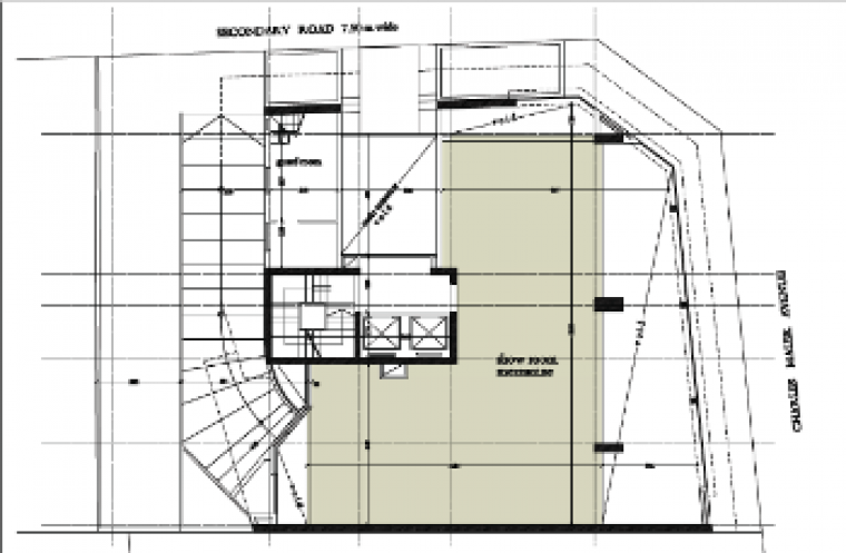
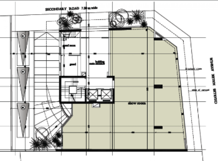
Description

Delivery in 4 month

Address

  • Address : Charles Malek Avenue Plot 506 / Rmeil
  • State/Country : Rmeil
  • Country : Beirut

Inquire about this property